МЕТАЛОПЛАСТИКОВІ ДВЕРІ - тепло, затишок і безпека - в одному рішенні!
- Будсервіс Олевськ
- 16 жовт.
- Читати 3 хв
🔍 Шукаєш двері, які:✅ Не пропускають холод та спеку?✅ Захищають від шуму?✅ Служать десятиліттями?✅ Виглядають естетично?
БУДСЕРВІС є офіційним представником
виробника металопластикових вікон та дверей EPSILON вже понад 20 років!
ЗАМІРЯЄМО. ДОСТАВЛЯЄМО. ВСТАНОВЛЮЄМО. ОБСЛУГОВУЄМО
Для виготовлення дверей EPSILON™ використовує надійний профіль, армування і фурнітуру, які забезпечать не тільки високу теплоізоляцію і захист від шуму, але і безпеку вашого житла.
В асортименті дверних систем виробництва EPSILON™ :
✔️ двері зовнішнього відкривання з ПВХ-профілю Epsilon Т 104/58, Т 104/70
Двері з ПВХ-профілю зараз використовуються так само широко, як і вікна - в житлових будинках і в громадських приміщеннях, офісах і магазинах. Для виготовлення дверей дуже важливо використовувати надійний профіль, який забезпечить не тільки теплоізоляцію та захист від шуму, але і безпеку.
Переваги Epsilon Т 104/58 та Т 104/70
У лінійці профільних систем Epsilon дверна група представлена системами з монтажною шириною 58 мм і 70 мм. Ці системи дозволяють прекрасно ізолювати приміщення від настирливого шуму вулиці і відволікаючих звуків.
Високий рівень енергозбереження, створює зручності при використанні в приватних будинках, за містом або в міських квартирах, з підвищеними вимогами до енергозбереження. При цьому пластикові двері з профілю Epsilon крім практичних властивостей, допоможуть вам у створенні оригінального дизайну інтер'єру.
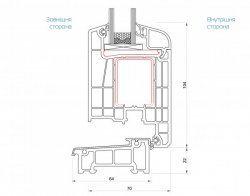
Технічні характеристики Т 104/58
монтажна глибина - 58 мм
колір білий, зовнішня та двостороння ламінація
нахил дренажу - 2 °
склопакет - 24 мм. та 34 мм.
теплий поріг з алюмінієвою накладкою 30 мм., алюмінієвий поріг з термомостом 45 мм. та 15 мм.
Технічні характеристики Т104 / 70
монтажна глибина - 70 мм
колір білий, зовнішня та двостороння ламінація
нахил дренажу - 2 °
склопакет - 24, 34 мм. та 44 мм.
теплий поріг з алюмінієвою накладкою 30мм., алюмінієвий поріг з термомостом 45мм. та 15 мм.
Кольорові декори T 104/58:
Стандартні кольори ламінаційних плівок:
Кольорові декори T 104/70:
Стандартні кольори ламінаційних плівок:
Нестандартні кольори ламінаційних плівок:
*колір ламінаційних текстур на вашому екрані може відрізнятись від оригіналу
Технічні креслення:
Т 104/58 Т 104/70
✔️ двері внутрішнього відкривання EPSILON S104/70 і EPSILON S96/58
Двері з ПВХ-профілю зараз використовуються так само широко, як і вікна - в житлових будинках і в громадських приміщеннях, офісах і магазинах. Для виготовлення дверей дуже важливо використовувати надійний профіль, який забезпечить не тільки теплоізоляцію та захист від шуму, але і безпеку.
Переваги Epsilon S 96/58 та S 104/70
У лінійці профільних систем Epsilon дверна група представлена системами з монтажною шириною 58 мм і 70 мм. Ці системи дозволяють прекрасно ізолювати приміщення від настирливого шуму вулиці і відволікаючих звуків.
Високий рівень енергозбереження, створює зручності при використанні в приватних будинках, за містом або в міських квартирах, з підвищеними вимогами до енергозбереження. При цьому пластикові двері з профілю Epsilon крім практичних властивостей, допоможуть вам у створенні оригінального дизайну інтер'єру.
Технічні характеристики S 104/70
монтажна глибина - 70 мм.
колір білий, зовнішня та двостороння ламінація
нахил дренажу - 2 °
склопакет - 24, 34 мм. та 44 мм.
теплий поріг з алюмінієвою накладкою 30 мм., алюмінієвий поріг з термомостом
45 мм. та 15 мм.
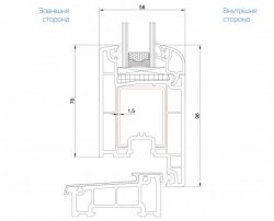
Технічні характеристики S 96/58
монтажна глибина - 58 мм.
колір білий, зовнішня та двостороння ламінація
нахил дренажу - 2 °
склопакет - 24 мм. та 34 мм.
теплий поріг з алюмінієвою накладкою 30 мм., алюмінієвий поріг з термомостом 45 мм. та 15 мм.
Кольорові декори S 104/70:
Стандартні кольори ламінаційних плівок:
Кольорові декори S 104/58:
Стандартні кольори ламінаційних плівок:
Нестандартні кольори ламінаційних плівок:
*колір ламінаційних текстур на вашому екрані може відрізнятись від оригіналу
Технічні креслення:
S 96 S 104
EPSILON™ - виробник високоякісних металопластикових конструкцій
Фотогалерея дверних конструкцій:
Дякуємо Вам, що обрали наш магазин!
З НАМИ ВИГІДНО!















































































































Коментарі